Australia

# Sold UNDER OFFER - first week

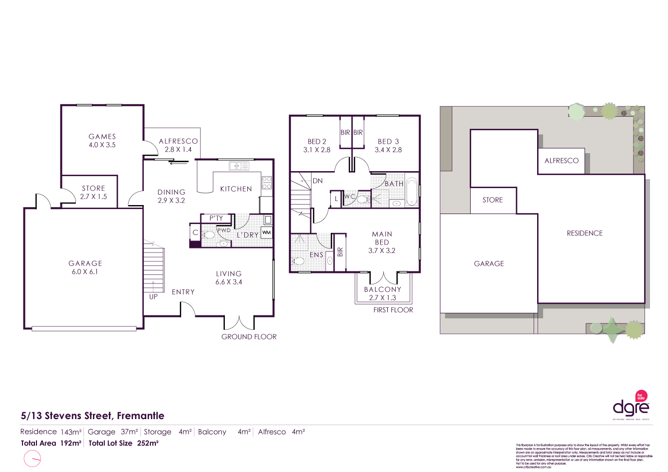
5/13 Stevens Street, Fremantle, WA 6160

# Location

Description

Exceptional location, walkable lifestyle Set behind a private red brick wall, this freestanding two-storey home in Stevens Village features a large 120sqm of internal living space with no common walls. The perfect home for easy care city living, you can live in the home as is, renovate and update, or make the most of an excellent investment opportunity. This exceptional location on the cusp of town is an easy stroll to the café strip, boutique shops, cinemas, and galleries, so you'll never be short of dining, entertainment, and socialising options.

Thoughtfully designed, the home features a spacious floorplan with three bedrooms, 2.5 bathrooms and a secure double garage plus a bonus multifunctional room with courtyard access perfect for a home office, study, games or 4th bedroom. The living area downstairs has good separation from the bedrooms upstairs to create different zones for everyday activity and rest.

Downstairs, an inviting living area features a lounge, dining, and well sized kitchen with a large pantry that will inspire your inner chef. The separate laundry and powder room add to the practicality of this space.

The staircase and top level feature hardwood floors, adding a touch of luxury. The large main bedroom boasts built in robes, a spacious ensuite bathroom and a private balcony to unwind with a good book whilst enjoying treetop views. The two minor bedrooms each have built-in robes and glimpses of the Indian Ocean.

This comfortable home offers unrivalled convenience and the opportunity to embrace a rich and eclectic lifestyle. It's an easy two-minute stroll to Fremantle Primary School, and four minutes to the Wray Avenue precinct where you can drop into Galati & Sons, Franks Gourmet Meats and Lawley's Bakery for fresh produce. The train station, bus station, and major routes to Perth city are accessible, making your daily commute easy.

3 bedrooms 2.5 bathrooms 2 cars with ground floor multifunctional room

Lifestyle location 1km from city center No common walls

Bonus multifunctional room Hardwood floors upstairs

Private balcony off main bedroom

Separate laundry

Large kitchen Family bathroom upstairs with bathtub

Lock up double garage

Storeroom Low maintenance gardens and courtyards

Council Rates: $2,804.05 per annum (Approx.) 2023-2024 Water Rates: $1,641.35 per annum (Approx.) 2023-2024 Strata Rates: $836.00 per quarter (Approx.) 2024-2025

Finer Details: Lot 5 on Strata Plan 42428 - Vol 2528 / Fol 605 Please call Exclusive Selling Agent Michael Harries on 0434 076 229 or Sales Associate Kat Goddard on 0408 791 299 from dgre on 0408 791 299 for further details

PLEASE NOTE while every effort has been made to ensure the given information, photos and floor plan is correct at the time of listing, this information is provided for reference only and is subject to change.

View More #

Floor Plans

Location

  • Contact the agency

    To request an inspection

  • # Call # Email

Michael Harries

Agent Name

Kat Goddard

Agent Name

# Report Listing

Looking for a property?

  • Top listings
  • Investment
  • Development
  • Personal home
  • Price reports
  • Suburb reports

Do you own a property?

  • Place a free listing
  • Services for private advertisers
  • Guide to selling your home
  • Insurance
  • Improve the photos of your listing
  • Value your property for free

Are you a real estate proffesional?

  • Publish your agencies properties
  • Already a client? Log into your account
  • Advertising on Australian Real Estate
  • Australian Real Estate data technology for property insights
  • Real Estate courses