Australia

# Sold OFFERS!

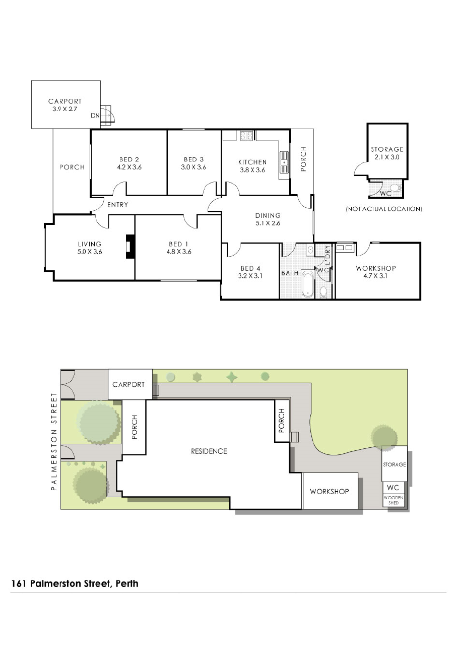
161 Palmerston Street, Perth, WA 6000

# Location

Description

ON THE MARKET FOR THE FIRST TIME IN NEARLY 60 YEARS! Charming 1920's Character Home in the Heart of Perth

On the market for the first time in nearly 60 years!

This enchanting circa 1920s character home, nestled in the heart of Perth, offers an unrivaled opportunity to renovate, extend, *(STCA) and create the home of your dreams in a highly sought-after locale. Steeped in history, this property boasts timeless charm and original features, making it a truly rare offering.

Key Features: - Central passage - 4 spacious bedrooms - Separate lounge room - Functional kitchen - Meals/dining area - High ceilings - Stunning character features throughout - 367sqm green title block - R50 Zoning - A stone's throw to Hyde Park & Robertson Park - Prime location with easy access to the city

Council Rates: $1,694 Water Rates: $1,139

With so much potential to restore or reinvent, this property is a gem waiting to be polished. Don't miss your chance to own a piece of Perth's history. This is a rare opportunity that won't last long!

Contact us today to arrange a viewing! Paul Holdsworth on 0407 081 050 or Basil Fogliani on 0418 925 155

Disclaimer: This information is provided for general information purposes only and is based on information provided by the Seller and may be subject to change. No warranty or representation is made as to its accuracy and interested parties should place no reliance on it and should make their own independent enquiries.

*(STCA) - Subject to Council Approval

View More #

Floor Plans

Location

  • Contact the agency

    To request an inspection

  • # Call # Email

Paul Holdsworth

Agent Name

Basil Fogliani

Agent Name

# Report Listing

Looking for a property?

  • Top listings
  • Investment
  • Development
  • Personal home
  • Price reports
  • Suburb reports

Do you own a property?

  • Place a free listing
  • Services for private advertisers
  • Guide to selling your home
  • Insurance
  • Improve the photos of your listing
  • Value your property for free

Are you a real estate proffesional?

  • Publish your agencies properties
  • Already a client? Log into your account
  • Advertising on Australian Real Estate
  • Australian Real Estate data technology for property insights
  • Real Estate courses